Description
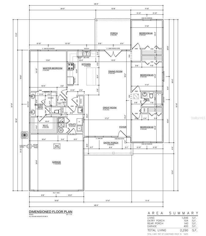
Pre-Construction. To be built. Pre-Construction. To be built. One or more photo(s) has been virtually staged. Subdivision Under Construction. What a wonderful open concept home! This home features a great room which engages all common areas including an open concept kitchen which overlooks the great room and dining room. The large kitchen encompasses counter space for additional seating in the well-appointed kitchen which includes all appliances, including refrigerator, built-in dishwasher, electric range, and microwave. The master bedroom bids access and seclusion from other bedrooms and offers a large walk-in closet. Master bathroom delivers dual sinks and the privacy of a water closet. Two additional bedrooms at the front of the home are separated by the second bathroom. The fourth bedroom is located just off the dining room. The laundry room, equipped with washer and dryer hookups, leads from the 2-car garage into the kitchen. Home includes an outdoor patio and sits on over a half-acre lot. Enjoy the quiet of country living yet have quick access to metropolitan areas via interstate highways and major roads. Subdivision located on a paved road with quick access to Hwy 90, and Interstate 10. Approximately 30 min to Lake City and I-75, 30 min to Jacksonville and I-95, 45 Min to Georgia, one hour to Gainesville, and 54 minutes to the Jacksonville BEACH. Pictures, photographs, colors, features, and sizes are for illustration purposes only. These items will vary as the home is built. HOME AND COMMUNITY INFORMATION INCLUDING PRICING, FEATURES, TERMS, AVAILABILITY AND AMENITIES ARE SUBJECT TO CHANGE AND PRIOR SALE AT ANY TIME, WITHOUT NOTICE OR OBLIGATION.
-
4BEDS
-
0.59ACRES
-
2BATHS
-
01/2 BATHS
-
1,646SQFT
-
$200$/SQFT
School Ratings & Info
Description
Pre-Construction. To be built. Pre-Construction. To be built. One or more photo(s) has been virtually staged. Subdivision Under Construction. What a wonderful open concept home! This home features a great room which engages all common areas including an open concept kitchen which overlooks the great room and dining room. The large kitchen encompasses counter space for additional seating in the well-appointed kitchen which includes all appliances, including refrigerator, built-in dishwasher, electric range, and microwave. The master bedroom bids access and seclusion from other bedrooms and offers a large walk-in closet. Master bathroom delivers dual sinks and the privacy of a water closet. Two additional bedrooms at the front of the home are separated by the second bathroom. The fourth bedroom is located just off the dining room. The laundry room, equipped with washer and dryer hookups, leads from the 2-car garage into the kitchen. Home includes an outdoor patio and sits on over a half-acre lot. Enjoy the quiet of country living yet have quick access to metropolitan areas via interstate highways and major roads. Subdivision located on a paved road with quick access to Hwy 90, and Interstate 10. Approximately 30 min to Lake City and I-75, 30 min to Jacksonville and I-95, 45 Min to Georgia, one hour to Gainesville, and 54 minutes to the Jacksonville BEACH. Pictures, photographs, colors, features, and sizes are for illustration purposes only. These items will vary as the home is built. HOME AND COMMUNITY INFORMATION INCLUDING PRICING, FEATURES, TERMS, AVAILABILITY AND AMENITIES ARE SUBJECT TO CHANGE AND PRIOR SALE AT ANY TIME, WITHOUT NOTICE OR OBLIGATION.
Related Properties
© 2026 My Florida Regional MLS DBA Stellar MLS. All rights reserved. All listings displayed pursuant to IDX. All listing information is deemed reliable but not guaranteed and should be independently verified through personal inspection by appropriate professionals. Listings displayed on this website may be subject to prior sale or removal from sale; availability of any listing should always be independently verified. Listing information is provided for consumers personal, non-commercial use, solely to identify potential properties for potential purchase; all other use is strictly prohibited and may violate relevant federal and state law. Data last updated 2026-03-08T23:43:18.983.
