Description
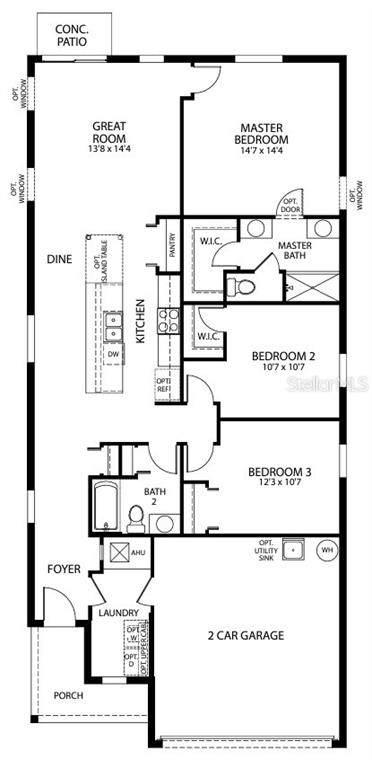
Pre-Construction. To be built. Lake Deer Estates – Elegance & Comfort Combined! Sidewalk-Lined Cul-de-Sac Living! This charming home offers a thoughtfully designed, highly efficient floor plan that maximizes every inch of space. A welcoming front porch opens to a mudroom with washer and dryer, providing easy access to the spacious 2-car garage and seamlessly connecting to the expansive kitchen at the heart of the home. The kitchen is a chef’s dream, featuring a full line of stainless steel appliances including an ESTAR side-by-side refrigerator, stone countertops, a large island, and abundant pantry space, with a convenient pass-through to the great room for effortless entertaining. The bright and airy great room at the rear of the home is filled with natural light through a large sliding glass door that opens to the patio overlooking a retention pond, offering serene water views and the perfect setting to relax or host guests. The primary suite, tucked away for privacy, includes a spacious walk-in closet and a luxurious bathroom with tiled shower and enclosure. Two additional bedrooms provide generous space and ample closet storage, complemented by a second full bath. Additional features include landscaping with front irrigation, modern smart home upgrades such as Ring Video Doorbell, Smart Thermostat, Keyless Entry Smart Door Lock, and Deako Switches, and a full builder warranty for peace of mind. Blending style, function, and comfort, this home in Lake Deer Estates offers the perfect retreat in a scenic, family-friendly community.
-
3BEDS
-
0.11ACRES
-
2BATHS
-
01/2 BATHS
-
1,492SQFT
-
$190$/SQFT
School Information
Description
Pre-Construction. To be built. Lake Deer Estates – Elegance & Comfort Combined! Sidewalk-Lined Cul-de-Sac Living! This charming home offers a thoughtfully designed, highly efficient floor plan that maximizes every inch of space. A welcoming front porch opens to a mudroom with washer and dryer, providing easy access to the spacious 2-car garage and seamlessly connecting to the expansive kitchen at the heart of the home. The kitchen is a chef’s dream, featuring a full line of stainless steel appliances including an ESTAR side-by-side refrigerator, stone countertops, a large island, and abundant pantry space, with a convenient pass-through to the great room for effortless entertaining. The bright and airy great room at the rear of the home is filled with natural light through a large sliding glass door that opens to the patio overlooking a retention pond, offering serene water views and the perfect setting to relax or host guests. The primary suite, tucked away for privacy, includes a spacious walk-in closet and a luxurious bathroom with tiled shower and enclosure. Two additional bedrooms provide generous space and ample closet storage, complemented by a second full bath. Additional features include landscaping with front irrigation, modern smart home upgrades such as Ring Video Doorbell, Smart Thermostat, Keyless Entry Smart Door Lock, and Deako Switches, and a full builder warranty for peace of mind. Blending style, function, and comfort, this home in Lake Deer Estates offers the perfect retreat in a scenic, family-friendly community.
Related Properties
© 2026 My Florida Regional MLS DBA Stellar MLS. All rights reserved. All listings displayed pursuant to IDX. All listing information is deemed reliable but not guaranteed and should be independently verified through personal inspection by appropriate professionals. Listings displayed on this website may be subject to prior sale or removal from sale; availability of any listing should always be independently verified. Listing information is provided for consumers personal, non-commercial use, solely to identify potential properties for potential purchase; all other use is strictly prohibited and may violate relevant federal and state law. Data last updated 2026-03-08T23:43:18.983.
