Description
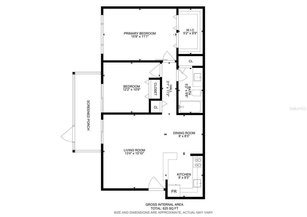
Ground-floor condo in the sought-after Fox Chase community, offering peaceful conservation views and no rear neighbors. This bright and welcoming layout features a kitchen with granite countertops, wood cabinetry with glass accents, built-in wine storage, and a comfortable breakfast bar that opens to the main living space. The spacious primary bedroom includes an oversized walk-in closet highlighted by a custom barn-style door. The bathroom has been tastefully updated with modern tile and contemporary finishes. Step out to the screened lanai and enjoy a quiet, tree-lined backdrop with an attached laundry/storage room for added functionality. Recent improvements include a new A/C, new appliances, and a water heater approximately 4 years old. Fox Chase offers a great mix of amenities community pool, tennis courts, clubhouse, playground, and walking paths all within a convenient Palm Harbor location close to beaches, shopping, dining, and top-rated schools.
-
2BEDS
-
1.03ACRES
-
1BATHS
-
01/2 BATHS
-
825SQFT
-
$206$/SQFT
School Ratings & Info
Description
Ground-floor condo in the sought-after Fox Chase community, offering peaceful conservation views and no rear neighbors. This bright and welcoming layout features a kitchen with granite countertops, wood cabinetry with glass accents, built-in wine storage, and a comfortable breakfast bar that opens to the main living space. The spacious primary bedroom includes an oversized walk-in closet highlighted by a custom barn-style door. The bathroom has been tastefully updated with modern tile and contemporary finishes. Step out to the screened lanai and enjoy a quiet, tree-lined backdrop with an attached laundry/storage room for added functionality. Recent improvements include a new A/C, new appliances, and a water heater approximately 4 years old. Fox Chase offers a great mix of amenities community pool, tennis courts, clubhouse, playground, and walking paths all within a convenient Palm Harbor location close to beaches, shopping, dining, and top-rated schools.
© 2025 My Florida Regional MLS DBA Stellar MLS. All rights reserved. All listings displayed pursuant to IDX. All listing information is deemed reliable but not guaranteed and should be independently verified through personal inspection by appropriate professionals. Listings displayed on this website may be subject to prior sale or removal from sale; availability of any listing should always be independently verified. Listing information is provided for consumers personal, non-commercial use, solely to identify potential properties for potential purchase; all other use is strictly prohibited and may violate relevant federal and state law. Data last updated 2025-11-09T13:45:01.08.
